Le nouveau logement locatif de la commune
L’annexe de la mairie devient logement locatif
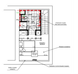
Ce logement d’une superficie de 40,20 m2 comprend :
- Rez-de-chaussée : 1 pièce de vie cuisine /séjour de 20,60 m2
- Étage : 1 chambre – 10,60 m2, 1 salle de bains et toilettes – 5,30 m2.
Il s’est écoulé une année entre la délibération du conseil municipal du 9 avril 2014 et l’inauguration de ce nouveau logement qui a eu lieu le 11 avril 2015.
Merci aux habitants du village qui se sont déplacés à la mairie pour fêter cet événement. Chacun a pu visiter le logement. Puis les participants se sont dirigés dans la salle du conseil pour partager le verre de l’amitié.
Présentation des différents intervenants pour la réalisation de ce projet :
- Maitre d’oeuvre : Architecte Michel Figea – Vigny
- Lot 1 => Maçonnerie, démolitions, cloisons, menuiseries extérieures et intérieures bois : Société Franscico Bâtiments – Sagy
- Lot 2 => Electricité : Société GED – Magny-en-Vexin
- Lot 3 => Plomberie : Société POINT – Gisors
- La peinture a été réalisée par l’agent communal, Claude Lepert.
Superficie
Étages
Coût
Subvention (DETR)
Retour sur investissement






















